【導讀】前面講解了常用連接插件中的耳機插座,DC電源輸入插座,USB A型母頭尺寸和相關資料,這里小編將繼續為大家帶來USB B型母頭,DB9 串口母口插座,SD卡插座的尺寸和管腳資料。希望這篇實用性很強的技術文能為從事PCB的童鞋們有很大的幫助。
【集合一】畫PCB時一些常用的接插件知識
http://www.yttele.cn/connect-art/80025221
【集合二】畫PCB時一些常用的接插件知識
http://www.yttele.cn/connect-art/80025222
USB A型插座DIP直插:

USB A型插座SMT貼片:

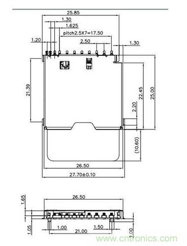
USB B型插座DIP直插:

USB Mini-B型插座貼片:

DB9 串口母口插座

我們經常會在開發板上用到這樣的DB9串口母頭插座。它的尺寸如下:

要認真看清楚DB9母口表面的數字標示。

通常母口的數字要與串口線上公接頭的數字對上。
作為主設備上(如計算機)的PCB板上一般放置公頭(針),而從設備(如開發板)一般放置母頭(孔)。這樣做的好處就是,減少主設備的接頭損壞次數,畢竟公頭比母頭還是結實很多。
連接兩個設備的串口要用串口線,由于很多設備的多樣性,所以串口線公-公、公母、母母的串口線都有,這里要注意,串口的2,3腳的連接,拿計算機與單片機通信作為例子,RS232要同通信的話,PC_RXD連接MCU_TXD,PC_TXD連接MCU_RXD。直連和交叉的串口線都有,但要對應上面這個連接關系。
串口線上基本都沒有標注2腳和3腳兩頭是直連還是交叉,所以一個比較好的做法就是以后用過的串口線上都掛一個寫明直連還是交叉的標牌,這樣就避免每次用串口線都抓瞎,最后導致串口連不上。
[page]
SD卡插座尺寸圖

上圖是我們一般在電子市場上買到的SD卡座。其外觀尺寸圖如下:

PCB尺寸圖如下:

8腳旁邊的兩個腳是沒用的,而G1,G2,G3,G4是固定腳,這四個腳也是與SD卡座的金屬外殼是連在一起的,最好是接
地,因為SD卡要用手來插拔,難免會把靜電帶到卡座上,如果這幾個固定管腳連上地的話,靜電就會通過這幾個腳留
回地,而不會對其他功能管腳有損害。

SD卡的接線圖(G5為8腳旁邊的那兩個沒用管腳)




