中心議題:
- NFC的應用
- NFC架構
- NFC規范調變
- RF測試kit及測試程序
近年來由于手機的功能與普及度快速的成長,使早期的電子錢包有了推廣的機會點。NFC的演進取自于RFID的特定頻段,由于手機的市場應用使的NFC可在較快的時間點取得標準接口與平臺,本文將針對NFC的架構與規范做討論。
NFC應用
電子付費系統中,目前應用于手機系統上最完整的解決方案是以NFC(nearfieldcommunication)為主,市場上也已經有相關產品流通著,如NOKIA3220、SamsungSGH-X700、VISAWAVE及臺北捷運優游卡等,皆是兼容于NFC系統。除了個人識別與電子付費系統外,NFC也在數據傳輸與交換上有了一些吸引人的功能,例如:電子海報的數據下載(包括入場卷、會展信息)。此外,NFC還可以作為藍牙設備配對及輸入密碼的簡化功能,若是使用者具有負載NFC的藍牙設備,即可將NFC分別靠近兩組具有NFC的藍牙設備,如此即可不需要透過藍牙搜尋及輸入密碼的配對過程即可快速連結。目前韓國、中國及歐美已經在電信業者、芯片商與手機制造商的合作下于公交付費系統中進行多次的驗證,預期NFC將有快速的成長。
NFC架構
NFC的操作頻率為13.56MHz,而操作距離約為10cm之內;而NFC的規范制定取至于RFID13.56MHz的頻段,早期運用此頻段包括PhilipsMiFARE(ISO1443A)、ISO1443B、ISO15693、ISO18000-3及SonyFelica。由于非接觸卡應用于個人數據識別或電子付費系統中強調于安全機制,而近乎于貼近卡片閱讀器系統的近場通信及是將13.56MHz中短距系統的部分加以整合,所以最后市場上所見的即為PhilipsMiFARE(ISO1443A)及SonyFelica,早期這兩家系統各自發展互不兼容,直到近年才將兩種規格合并并制定了NFC規范ECMA340/ISO18092(NFCIP1,NFCInterfaceandprotocol1)。此規范相容于現有PhilipsMiFARE(ISO1443A)及SonyFelica。

NFC工作頻率為13.56MHz、ASK調變,傳輸速率可分為106kbps/212kbps/424kbps三種,通信模式可分為主動模式與被動模式,主動模式是指發起設備(initiator)與目標設備(target)皆可自身電源供應產生RFfield,而被動模式下則是發起設備自身供應電源產生RFfield;而目標設備則利用全波整流線路將發起端的RFfield之能量轉換為DC來供應自己的電源。值得一提的是,在被動模式下為了要滿足省電的要求所以采用了負載調變(Loadmodulation)的方式,此調變方式可以達到省電的效果。
在使用上因為NFC的使用通常會遇到使用尖峰時期,會了避免不同的發起端或目標端同時溝通造成數據鏈路錯誤,所以NFC采用了一種機制listenbeforetalk。此機制會讓當發起端設備要發出詢問信號前,先偵測外界磁場強度來判斷是否有其它的設備正在溝通中,這種機制的實現稱為RFCollisionAvoidance(RFCA),其動作行為是在每次發起端發出詢問信號時會偵測外界磁場,當磁場強度超過門坎強度時(Hthreshold=0.1875A/m)則會停止詢問,直至外界強度降至門坎值以下。若是低于臨界值才會開始發出詢問指令,偵測的時間為TIDT+nTRFW,n為0~3的機率取樣:TRFW=512/fc(RFwaitingtime),TIDT>4096/fc(initialdelaytime)。當發起設備在TIDT+nTRFW內沒有偵測到超過門坎強度的磁場,則會先發射TIRFG的未調變RFfield之后再發出詢問信號,其中TIRFG必須大于5ms。

[page]
NFC規范調變
在此將針對NFCRFinterface做敘述,首先要先介紹EMCA340與EMCA356兩種標準,EMCA340中敘述NFC相關協議,這里先引入數據封標作討論,NFC數據分包分為兩種類型,一為106kpbs、一為212/424kbps。


由于NFC106kbps為100%ASK調變,所以對整個High/Low信號的封包結構都有相當詳細的定義。其中幾個參數包括從100%下降到5%Am時間(t1)、5%Am持續時間(t2)、Am由5%上升至60%時間(t4)即overshoot的范圍。而212/424kbps則是8%~30%的調變率。
[page]
RF測試kit
1.Calibration coil:coil的功能在于驗證測試過程中,待測物所發射出的信號是否為正確的強度與調變。此Coil為一簡單的天線架構,當然EMCA也詳細的規定了所有的尺寸,由此coil所測出的值為0.32V(RMS)=1A/m(磁場強度)。

2.Field Generating Antenna:kit用于磁場的發射,圖中還包含了一組天線匹配線路。

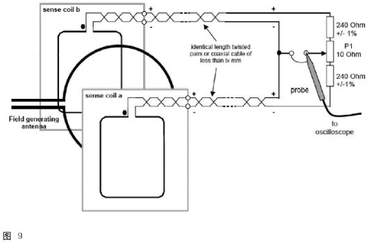
3.Sense coil:sense coil用于量測待測物的磁場強度與調變。

[page]
4.Reference device:圖7為兩種測試標準線路和一組天線coil,此referencedevice用于測試DUT的標準件。其中又包含了兩組測試電路,圖7-2為調變測試電路,圖7-3為電源測試電路。



RF測試程序
1.發起設備Power測試:此測項在測試由發起設備所供給的磁場強度是否供給目標物足夠的工作電源。將信號由generatingantenna調整發射,于右端的calibrationcoil量測到的強度為Hmax(7.5A/m),此時再將referencedevice配合power測試線路調整C2使線路共振點位于19MHz(此部份在規范中并無詳述為何調整至19MHz,在此推論若19MHz可達到3V輸出則當目標物為13.56MHz時其電壓一定會超高3V,此因該為取其下限值),放置于DUT位置,調整線路R2使的由C3所得到之電壓值為3V。此時Referencedevice已經完成,之后再將此卡用來量測發起設備,將此卡放至于發起設備所標注之超作范圍,在此超作范圍內任意位置所量測到的電壓值(C3)皆不可超過3V。至于Hmin測試則與max大致相同,不同處為將referencedevice共振頻率調至13.56MHz及所量測知電壓值皆須超過3V。

[page]
2.目標物的loadmodulation測試:
(1)被動模式
●106kbps:此測試為驗證目標物可正確調變出波形,先將calibrationcoil放置于下側外緣,確定generatingantenna所發射之波形與強度正確無誤,此時再將待測目標物放置于上側外緣,編輯一個ECMA340所定義之SENS_REQ波型由generatingantenna發射并在待測目標物會回送一個SENS_RES信號,如此即可透過二個sensecoil量測到信號,此量測架構因考量回傳之負載調變信號微弱,所以利用兩個sensecoil之間電壓差做計算,由于兼容系問題,所以在106kbps延續MiFARE使用副載波(subcarrier)的調變作被動目標物的回傳信號,所以量測點應于fc+fs與fc-fs(fc=13.56MHz,fs=fc/16)。

●212/424kbps:高速的調變信號量測方式則與106kbps十分相似,只是將量測擷取位置改為fc,因為此兩種傳輸速度下并無使用副載波調變
(2)主動模式
主動模式的測試與被動模式上并無太大的差異,由于是主動模式所以加測了目標物的RFfield發射的時間,指令下達的時間……等。
3.發起設備的loadmodulation測試:此測試在于驗證發起設備的調變機制,可分為主動模式發射與被動模式接收兩種。
(1)主動模式發射:將calibrationcoil放置于發起設備所定義的任意位置,而所量測的波型皆需符合ECMA340所定的規范。
(2)被動模式接收:此為測試發起設備可以正確的接收被動目標物所回傳的信號。利用圖7-2的loadmodulation測試線路所做成的referencedevice,先將對應C3電壓與距離的關系以圖8的架構校正好,之后即可將此卡與發起設備的待測物做量測,測試由referencedevice所發出的調變信號于待測物端的接收情況。在此只能對部分的測試項目做討論而詳細的測試請參考ECMA。
NFC系統與芯片開發
目前市場上所能見到的NFC最為積極推動的包括了Philips、NOKIA、Sony與Samsung,而這幾家廠商皆有產品于市場上,包括PhilipsPN511/PN531、NOKIA3220,RFMD也預計于RF4100與RF4113兩個具有NFC功能的單芯片,RF4100為藍牙與NFC整合的系統芯片,具有高整合度的手機應用界面,而RF4113則為NFC系統芯片。RF4100尺寸為5mm×5mm的BGA與3.7mm×3.7mmWLCSP。預期NFC將會為手機應用層面帶入一個新紀元。





